
Funcional y sin complicaciones
Señalética y gráfica ambiental
Una vez acabada la construcción del edificio que albergará la Musika Eskola el Ayuntamiento de Amorebieta se plantea dotarlo de una señalética que respete el exquisito diseño y que lo acompañe. Todo ello con el requisito indispensable de cumplir las normas de accesibilidad.
Para ello el Ayuntamiento se pone en contacto con un par de empresas expertas en diseño de sistemas de señalética, entre ellas la.vita. estudio. Despues de un pequeño proceso de selección nuestra propuesta es la elegida por ser la que mejor se adecúa a las necesidades expuestas por el Ayuntamiento de Amorebieta.
la.vita. estudio en colaboración con la empresa de rotulación Rotustand hemos creado un sistema de señalética muy sencillo que cumple con el objetivo marcado, tanto de diseño como de accesibilidad. El sistema, diseñado sin complicaciones y con los mismos materiales que se repiten en todo el interior, acompaña a la arquitectura del edificio y se integra perfectamente en ella. La señalética creada cumple estricta y discretamente su función, como debe ser.
Señalética y gráfica ambiental
ESCUELA DE MÚSICA DE AMOREBIETA
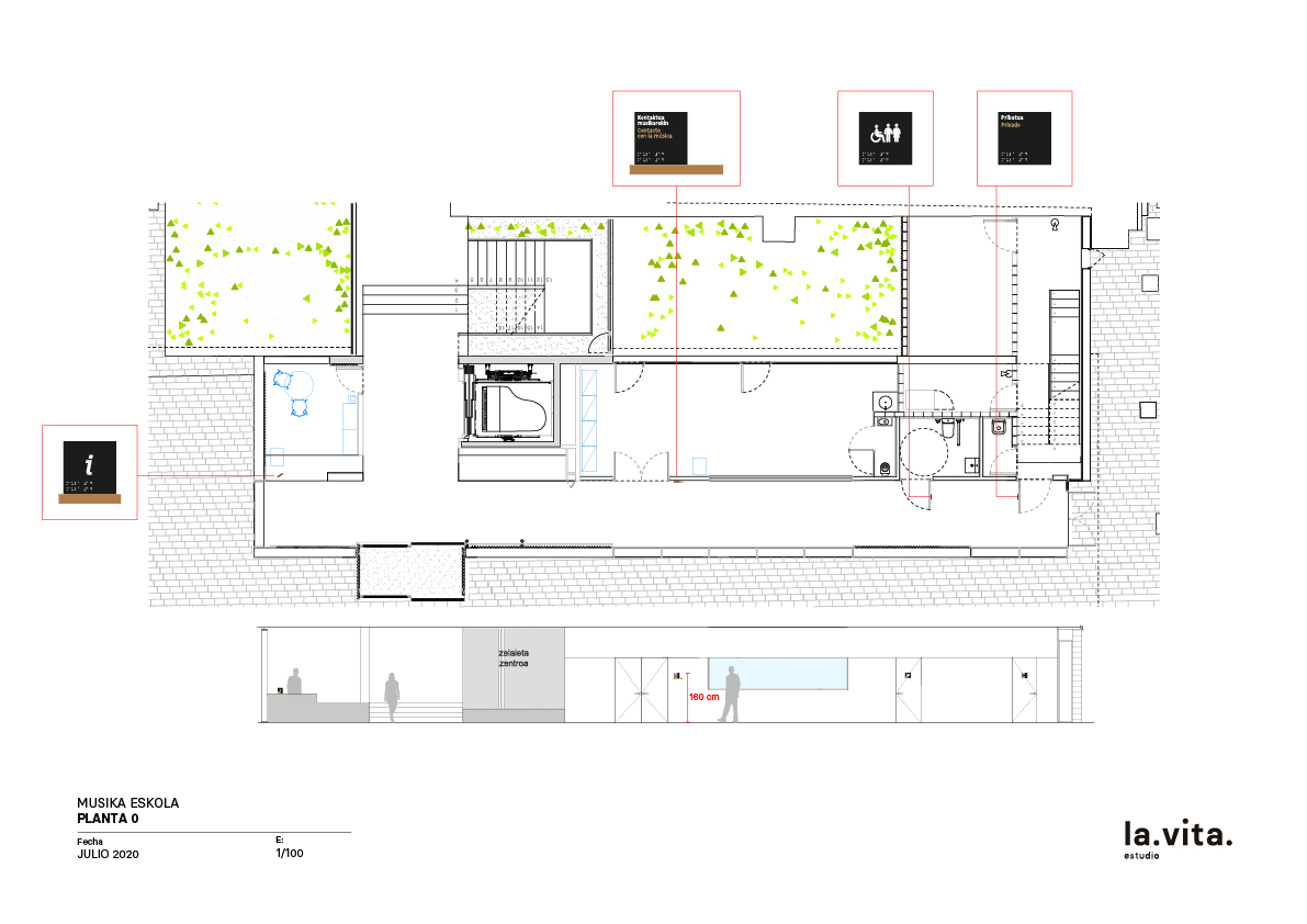
La Escuela de Música de Amorebieta se estrena en un nuevo edificio, diseñado con un cuidado exquisito. En su arquitectura destaca la utilización de materiales nobles, entre los que sobresale la madera, que cubre gran parte del interior de la escuela con un diseño alistonado. Este diseño es el que ha servido de inspiración para crear una señalética funcional y sin complicaciones.
Una vez acabada la construcción del edificio que albergará la Musika Eskola el Ayuntamiento de Amorebieta se plantea dotarlo de una señalética que respete el exquisito diseño y que lo acompañe. Todo ello con el requisito indispensable de cumplir las normas de accesibilidad.
Para ello el Ayuntamiento se pone en contacto con un par de empresas expertas en diseño de sistemas de señalética, entre ellas la.vita. estudio. Despues de un pequeño proceso de selección nuestra propuesta es la elegida por ser la que mejor se adecúa a las necesidades expuestas por el Ayuntamiento de Amorebieta.
la.vita. estudio en colaboración con la empresa de rotulación Rotustand hemos creado un sistema de señalética muy sencillo que cumple con el objetivo marcado, tanto de diseño como de accesibilidad. El sistema, diseñado sin complicaciones y con los mismos materiales que se repiten en todo el interior, acompaña a la arquitectura del edificio y se integra perfectamente en ella. La señalética creada cumple estricta y discretamente su función, como debe ser.
Placas
Las placas que señalizan cada estancia están colocadas sobre listones de madera de roble. La anchura de las placas es menor que la de los listones, de manera que, cuando la placa señaliza algo a su derecha, esta se coloca en la parte derecha del listón y si está marcando lo que queda a su izquierda se alinea a la izquierda. Vinilos
Todos los cristales del edificio, tanto exteriores como interiores, se han vinilado con un diseño muy sencillo que recrea las ondas de sonido. Esto cumple un doble objetivo: decorar y hacer que el edificio cumpla escrupulosamente con las normas de accesibilidad en la rotulación.Directorio
Además de la señalización de cada estancia es necesaria la creación de un Directorio que ayude a la gente que accede al edificio a moverse por las diferentes plantas, aulas, etcLa solución es un totem exento que se puede mover y colocar en diferentes posiciones según convenga. La pieza se inspira de nuevo en la estética alistonada de la decoración en madera del interior del edificio.









Cliente: Ayuntamiento de Amorebieta
Arquitecto: Javier de las Heras Solé
Diseño señalética: la.vita. estudio
Producción: Rotustand Rotulación
Tipografía: Noway de Atipo Foundry
Arquitecto: Javier de las Heras Solé
Diseño señalética: la.vita. estudio
Producción: Rotustand Rotulación
Tipografía: Noway de Atipo Foundry
